Omschrijving

Starters opgelet!

Wil je wonen in een gezellige straat op steenworp afstand van het station en het centrum en om de hoek van winkelcentrum Cronjé? In een sfeervolle benedenwoning met een tuin? Kom dan snel een kijkje nemen aan de Saenredamstraat 5 zwart.

Je woont hier heerlijk in een kleine buurt die grenst aan de prachtige en populaire Kleverparkbuurt. De buurt wordt aan de zuidzijde begrensd door de Schotersingel, een prachtig wandel- en recreatiegebied. Direct na de singel bevindt zich het station met daarachter het centrum. Heerlijk centraal dus!

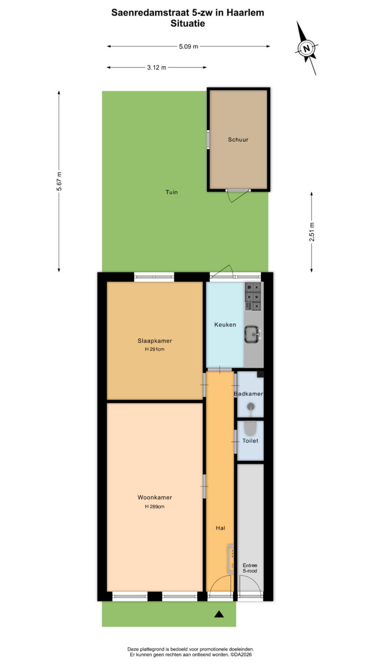
Je betreedt de woning in de hal met toilet en badkamer met douche. De woonkamer heeft een hoog plafond en een grote raampartij aan de voorzijde wat zorgt voor een plezierige, lichte ruimte. Aan de achterzijde bevindt zich de keuken met toegang tot de gezellige tuin op het noordoosten. Hier zijn verschillende zithoekje gecreëerd waar je op elk moment van de dag heerlijk kunt genieten en er is een stenen schuur met bergruimte en aansluitingen voor de wasmachine en droger. Ook de slaapkamer bevindt zich aan de achterzijde van de woning en heeft een wastafel. Deze is lekker ruim en heeft uitzicht op de tuin.

Het appartement is netjes onderhouden en biedt tevens mogelijkheden om het naar je eigen smaak te maken. Enthousiast? Plan snel een bezichtiging!

Goed om te weten:
Woonoppervlak 44 m2
Hoge plafonds en ramen
Energielabel C
Servicekosten € 100,- per maand
Parkeren middels vergunning (direct te verkrijgen)
Op loopafstand van station Haarlem, het bruisende centrum van Haarlem en de gezellige Generaal Cronjestraat.
Oplevering in overleg

€ 350.000,- k.k.

  • 44 m2 oppervlakte
  • 1 slaapkamer
Vraag een bezichtiging aan Bekijk brochure

Kenmerken

Overdracht
  • StatusVerkocht onder voorbehoud
  • Koopprijs€ 350.000,- k.k.
  • AanvaardingIn overleg
Bouw
  • Soort objectAppartement
  • Soort appartementBenedenwoning
  • Bouwjaar1900
  • BouwvormBestaande bouw
Oppervlakte en inhoud
  • Woonoppervlakte44 m2
  • Inhoud150 m3
Indeling
  • Aantal kamers2
  • Aantal slaapkamers1
  • Aantal badkamers1
  • Aantal woonlagen1
Energie
  • VerwarmingCV ketel
  • C.V.-KetelIntergas
  • Bouwjaar C.V.-Ketel2015
  • WarmwaterCV ketel
  • CombiketelJa
  • EigendomEigendom
Buitenruimte
  • TuinAchtertuin, Voortuin
  • HoofdtuinAchtertuin
  • Oppervlakte29 m2
  • Ligging hoofdtuinNoordoost
  • Kwaliteit tuinNormaal
  • Schuur / BergingVrijstaand steen
  • VoorzieningenVoorzien van elektra, Voorzien van water
  • Totaal aantal1
Parkeergelegenheid
  • Parkeer faciliteitenParkeervergunningen
  • GarageGeen garage