Omschrijving

Licht 3-kamer hoekappartement met zonnig balkon en vrij uitzicht.

Op een centrale en groene locatie in IJmuiden, nabij het stadspark, winkels, openbaar vervoer, uitvalswegen en het strand, ligt dit lichte 3-kamer hoekappartement met een zonnig balkon op het zuidwesten. De woning bevindt zich op de bovenste verdieping van een kleinschalig complex en biedt daardoor veel privacy én een fraai uitzicht aan de voorzijde op het Stadspark. Het appartement is in 2022 gemoderniseerd waarbij de keuken, badkamer, vloeren en het stucwerk is vernieuwd.

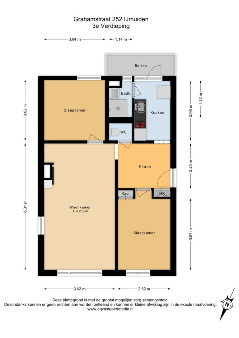
Via de entree bereik je de hal met meterkast en separaat toilet. De ruime woonkamer geniet van veel lichtinval dankzij de hoekligging en grote raampartijen. Vanuit de moderne keuken is er toegang tot het zonnige balkon, waar je heerlijk kunt genieten van de middag- en avondzon.
Het appartement beschikt verder over twee slaapkamers en een moderne badkamer met douche en wastafel.

Op de begane grond bevindt zich een royale eigen berging, ideaal voor fietsen of extra opslagruimte.

Goed om te weten
- Woonoppervlak 60 m2
- In 2022 geheel gemoderniseerd
- Balkon op het zuidwesten
- Veel lichtinval door de hoekligging
- Eigen berging op de begane grond, gemakkelijk te bereiken met fiets/brommer
- Energielabel E
- Centraal gelegen nabij winkels, OV, duinen en strand
- Bovenste verdieping: geen bovenburen
- Servicekosten € 200,- per maand

€ 275.000,- k.k.

  • 60 m2 oppervlakte
  • 2 slaapkamers
Vraag een bezichtiging aan Bekijk brochure

Kenmerken

Overdracht
  • StatusVerkocht onder voorbehoud
  • Koopprijs€ 275.000,- k.k.
  • AanvaardingIn overleg
Bouw
  • Soort objectAppartement
  • Soort appartementPortiekflat
  • Bouwjaar1957
  • BouwvormBestaande bouw
  • LiggingenIn woonwijk, Vrij uitzicht
Oppervlakte en inhoud
  • Woonoppervlakte60 m2
  • Inhoud194 m3
Indeling
  • Aantal kamers3
  • Aantal slaapkamers2
  • Aantal woonlagen3
Energie
  • VerwarmingCV ketel
  • C.V.-KetelRemeha
  • Bouwjaar C.V.-Ketel2013
  • WarmwaterCV ketel
  • IsolatieDakisolatie, Gedeeltelijk dubbelglas
  • CombiketelJa
  • EigendomEigendom
Buitenruimte
  • TuinGeen tuin
  • Schuur / BergingInpandig
  • Totaal aantal1
Parkeergelegenheid
  • Parkeer faciliteitenOpenbaar parkeren
  • GarageGeen garage