Omschrijving

In het geliefde Santpoort-Noord: sfeervolle jaren ’30 eindwoning, instapklaar en voorzien van een bijzonder diepe, uitgebouwde woonkamer met volop licht en leefruimte.

Welkom bij Voorplaats 12 – een charmante en goed onderhouden eindwoning uit 1935, gelegen op een rustige en geliefde locatie in het hart van Santpoort-Noord. Deze woning combineert authentieke details met modern woongemak, en biedt dankzij de erker, aanbouw én dakkapel verrassend veel leefruimte.

Indeling en sfeer
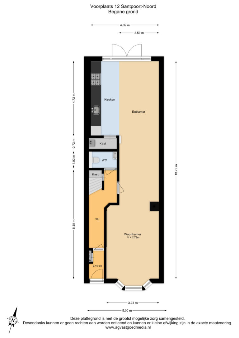
Bij binnenkomst valt direct de sfeervolle woonkamer op, voorzien van een karakteristieke erker die zorgt voor veel lichtinval en een prettige zithoek. De aanbouw aan de achterzijde creëert extra ruimte voor een royale eethoek of werkplek met uitzicht op de tuin. De woning is met zorg onderhouden en dat is in elk detail terug te zien.

Ruimte en comfort
De eerste verdieping beschikt over twee ruime slaapkamers en een comfortabele badkamer met tweede toilet. De wasmachine en droger hebben een eigen, praktische plek op deze verdieping.
Op de bovenste verdieping vind je onder andere een ruime slaapkamer met dakkapel, wat niet alleen extra leefruimte biedt, maar ook een gevoel van openheid en licht creëert. De woning biedt volop mogelijkheden voor verdere uitbreiding of aanpassing naar eigen wens.

Buitenleven
De royale zonnige achtertuin is verzorgd aangelegd en beschikt over een ruime berging, ideaal voor fietsen of hobbyruimte. De handige achterom maakt het geheel compleet.

Ligging
Voorplaats 12 ligt op steenworp afstand van het gezellige dorpscentrum van Santpoort-Noord, met diverse winkels, restaurants, cafés en voorzieningen binnen handbereik. Daarnaast is de woning gunstig gelegen ten opzichte van scholen, openbaar vervoer en uitvalswegen richting Haarlem en Amsterdam. Ook de duinen en het strand zijn op korte fietsafstand bereikbaar.

Kortom: een karaktervolle woning op een toplocatie, perfect voor wie op zoek is naar sfeer, comfort én gemak!

Goed om te weten:
Woonoppervlak 113 m2
Riant perceel van maar liefst 153 m2
In 2014 geheel gemoderniseerd
Voorzien van Tonzon vloerisolatie en spouwmuurisolatie
Eindwoning
Energielabel C
Oplevering in overleg

€ 615.000,- k.k.

  • 113 m2 oppervlakte
  • 153 m2 perceel
  • 3 slaapkamers
Vraag een bezichtiging aan Bekijk brochure

Kenmerken

Overdracht
  • StatusVerkocht
  • Koopprijs€ 615.000,- k.k.
  • AanvaardingIn overleg
Bouw
  • Soort objectWoonhuis
  • Soort woningEengezinswoning
  • Type woningEindwoning
  • Bouwjaar1935
  • BouwvormBestaande bouw
  • LiggingenIn centrum, In woonwijk
  • Soort dakZadeldak
  • Materiaal dakPannen
Oppervlakte en inhoud
  • Woonoppervlakte113 m2
  • Perceeloppervlakte153 m2
  • Inhoud362 m3
Indeling
  • Aantal kamers4
  • Aantal slaapkamers3
  • Aantal badkamers1
Energie
  • VerwarmingCV ketel
  • C.V.-KetelRemeha
  • Bouwjaar C.V.-Ketel2014
  • WarmwaterCV ketel
  • IsolatieDakisolatie, Vloerisolatie, Dubbelglas
  • CombiketelJa
  • BrandstofGas
  • EigendomEigendom
Buitenruimte
  • TuinAchtertuin, Voortuin
  • HoofdtuinAchtertuin
  • Oppervlakte62 m2
  • Ligging hoofdtuinNoordwest
  • Kwaliteit tuinVerzorgd
  • Schuur / BergingVrijstaand steen
  • VoorzieningenVoorzien van elektra
  • Totaal aantal1
Parkeergelegenheid
  • Parkeer faciliteitenOpenbaar parkeren
  • GarageGeen garage